hero-image-0
Deerfield Estates by Pinewood ...
Sold
Sold
3
2
1
From 1,651
unit-banner-imageunit-banner-imageunit-banner-image
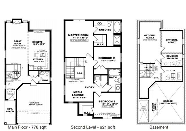
Vidal Plan details
Vidal Plan is now sold.
Check out available nearby plans below.