hero-image-0
King George School Lofts & Tow...
Sold
Sold
3
2
1
From 2,100
unit-banner-imageunit-banner-imageunit-banner-image
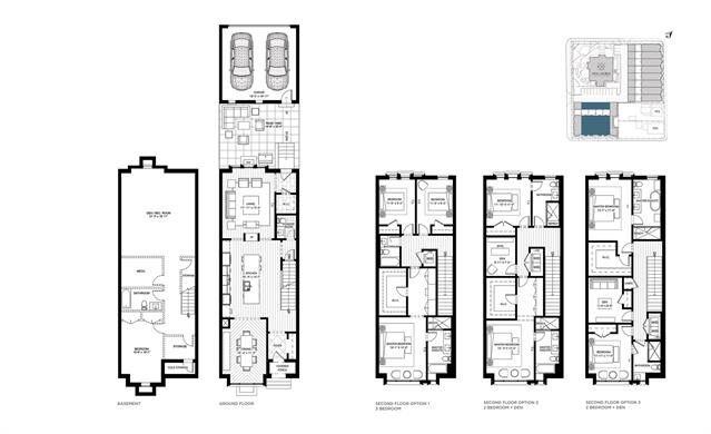
Botsford 2 Plan details
Botsford 2 Plan is now sold.
Check out available nearby plans below.