hero-image-0

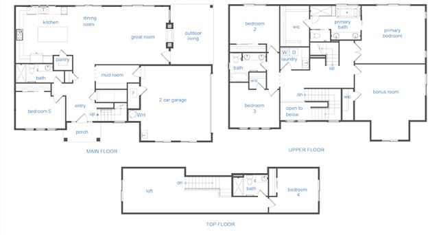
Plan 3542

Reserve at May Creek
Sold
Sold
5
4
From 3,542
Plan 3542 details
Plan 3542 is now sold.
Check out available nearby plans below.