hero-image-0
hero-image-1
hero-image-2

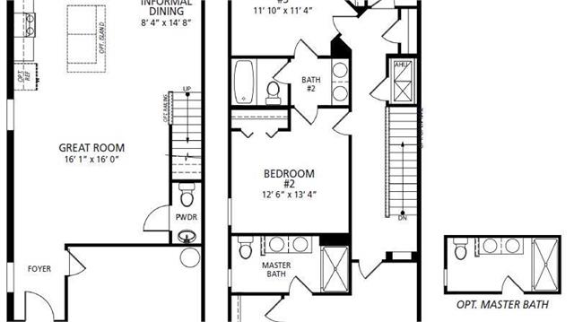
12546 Nw 7th Place

Tara West End
Sold
Sold
3
2
1
1,615
12546 Nw 7th Place details
12546 Nw 7th Place is now sold.
Check out available nearby homes below.