hero-image-0

39428 Dragonfly Street

Camellia at Sanctuary Village
Sold
Sold
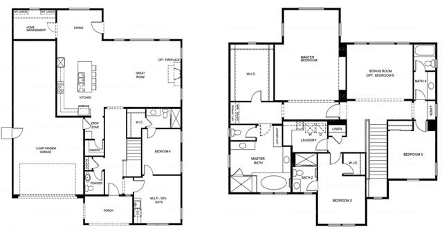
4
4
1
3,490
39428 Dragonfly Street details
unit-banner-image
unit-banner-image
unit-banner-image
39428 Dragonfly Street is now sold.
Check out available communities below.