hero-image-0
Thirty Park Place
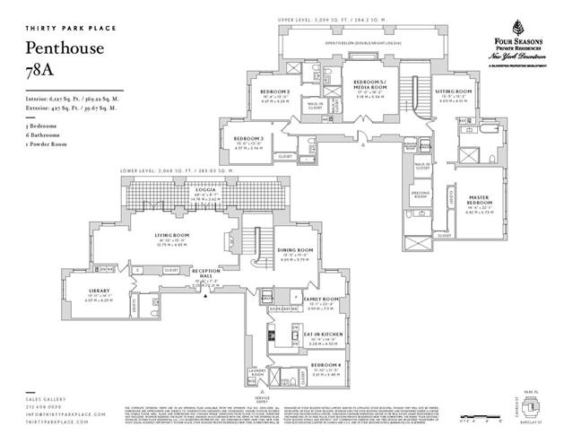
Sold
Sold
5
6
1
6,127
78A details
unit-banner-image
unit-banner-image
unit-banner-image
78A is now sold.
Check out available nearby condos below.