




These 7 luxury condo bathroom renderings feature jaw-dropping New York City views
For the average New York City apartment dweller, a good view can be hard to come by.

We didn’t start the fire: Neighborhood spotlight on Hell’s Kitchen
Hell's Kitchen is the hottest neighborhood for active residential construction in Manhattan.

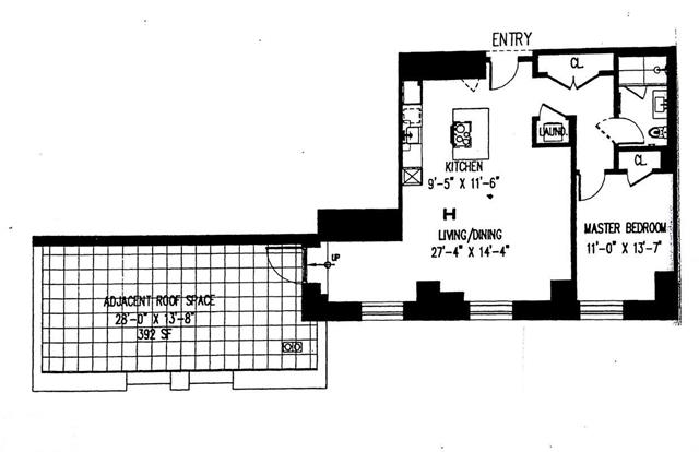
Stella Tower by JDS and PMG launches sales
Pricing for the 51-unit condo conversion ranges from $1.8 million to $6.2 million.