hero-image-0

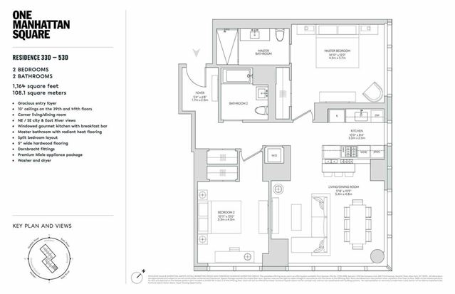
48D

One Manhattan Square
Sold
Sold
2
2
1,164
48D details
48D is now sold.
Check out available nearby condos below.

Interested? Receive updates

Stay informed with Livabl updates on new community details and available inventory.