hero-image-0

22A

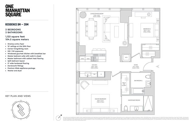
One Manhattan Square
Sold
Sold
2
2
1,162
22A details
22A is now sold.
Check out available nearby condos below.

Interested? Receive updates

Stay informed with Livabl updates on new community details and available inventory.