hero-image-0
Madison House
Sold
Sold
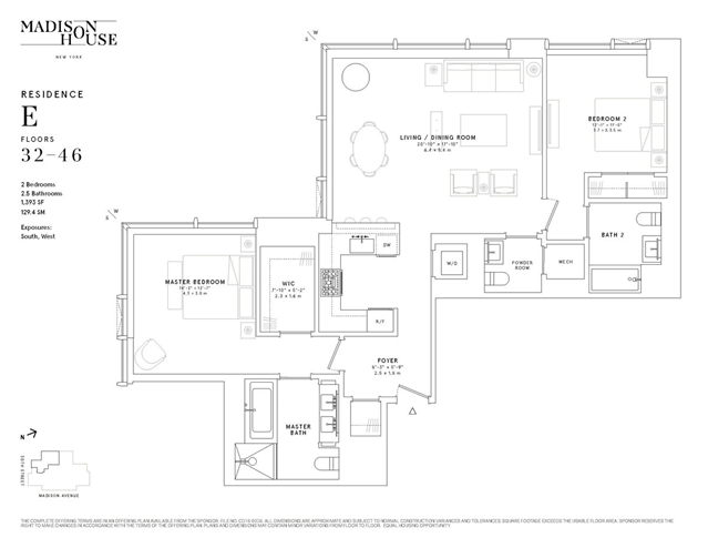
2
2
1
1,393
34E details
34E is now sold.
Check out available nearby condos below.

Interested? Receive updates

Stay informed with Livabl updates on new community details and available inventory.