hero-image-0
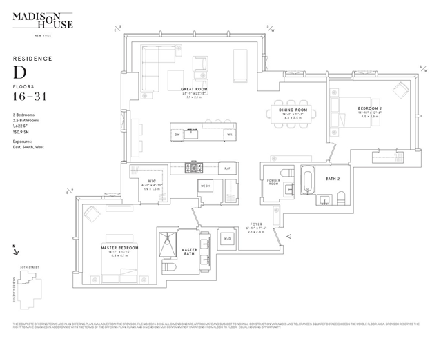
Madison House
Sold
Sold
2
2
1
1,622
29D details
29D is now sold.
Check out available nearby condos below.

Interested? Receive updates

Stay informed with Livabl updates on new community details and available inventory.