hero-image-0
Madison House
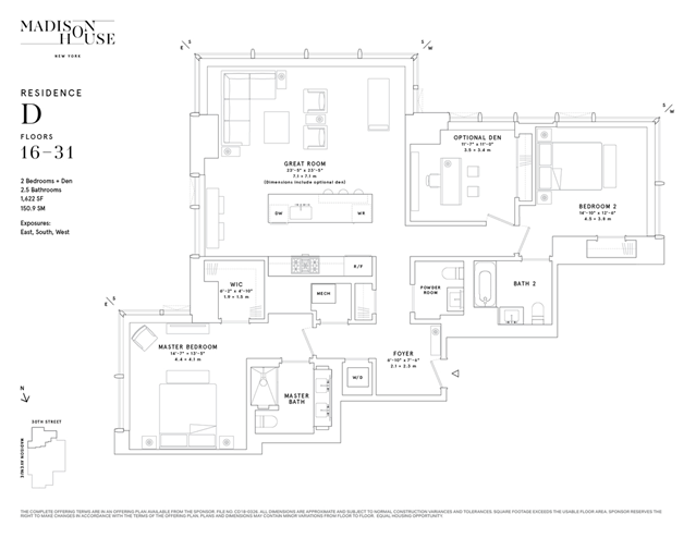
Sold
Sold
2
2
1
1,622
19D details
19D is now sold.
Check out available nearby condos below.

Interested? Receive updates

Stay informed with Livabl updates on new community details and available inventory.