hero-image-0
Madison House
Sold
Sold
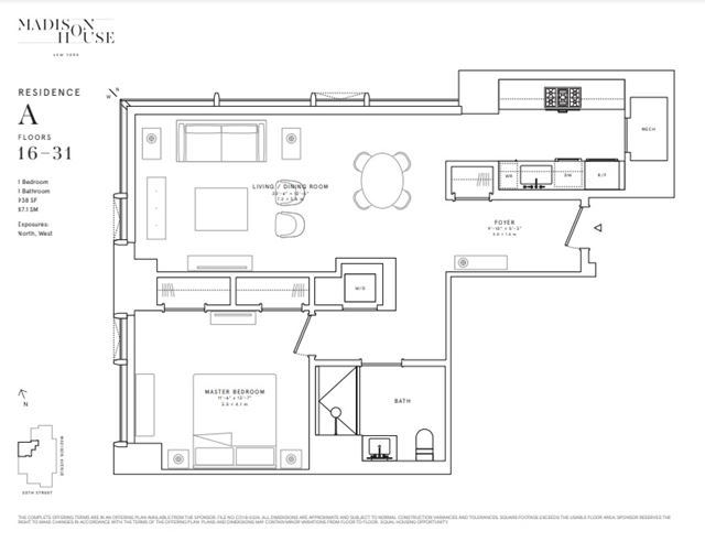
1
1
938
17A details
unit-banner-image
unit-banner-image
unit-banner-image
17A is now sold.
Check out available nearby condos below.

Interested? Receive updates

Stay informed with Livabl updates on new community details and available inventory.