hero-image-0
Lexington Hill Condominium
Sold
Sold
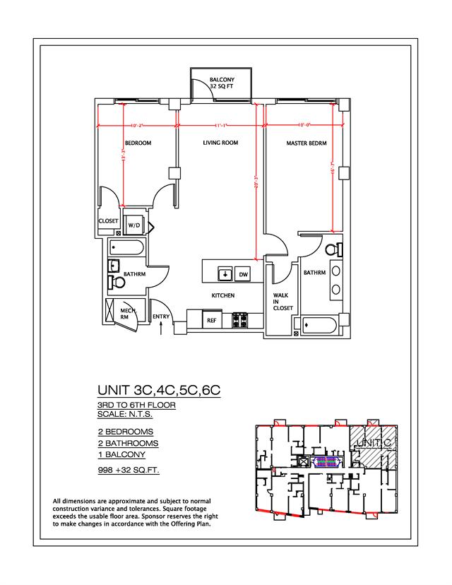
2
2
1,121
$801
3C details
unit-banner-image
unit-banner-image
unit-banner-image
3C is now sold.
Check out available nearby condos below.