hero-image-0

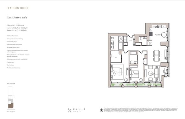
12A

By

Anbau

   |   

Flatiron House

Flatiron House
Sold
Sold
2
2
1
1,672
12A details
12A is now sold.
Check out available nearby condos below.