hero-image-0
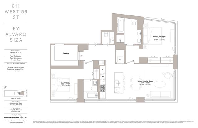
611 West 56th Street
Sold
Sold
2
2
1
1,400
15A details
15A is now sold.
Check out available nearby condos below.