hero-image-0

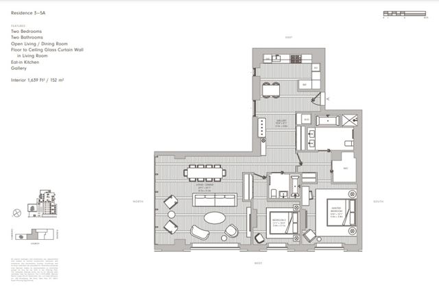
3A

By

Cape Advisors

   |   

30 Warren

30 Warren
Sold
Sold
2
2
1,644
$1,734
3A details
3A is now sold.
Check out available nearby condos below.