hero-image-0
Viceroy by Bosa Properties
Sold
Sold
2
From 873
unit-banner-imageunit-banner-imageunit-banner-image
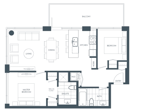
Plan Z details
Plan Z is now sold.
Check out available nearby plans below.