hero-image-0

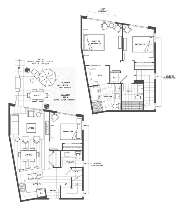
TH3 Plan

By

Onni Group

   |   

The Lookout

The Lookout
Sold
Sold
3
2
1
From 1,245
unit-banner-imageunit-banner-imageunit-banner-image
TH3 Plan details
TH3 Plan is now sold.
Check out available nearby plans below.