hero-image-0

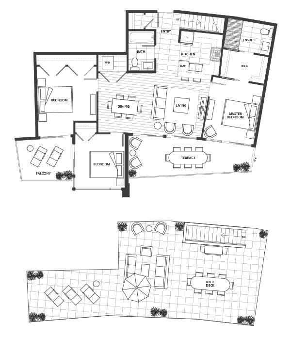
K2 Plan

By

Onni Group

   |   

The Lookout

The Lookout
Sold
Sold
3
2
From 1,075
unit-banner-imageunit-banner-imageunit-banner-image
K2 Plan details
K2 Plan is now sold.
Check out available nearby plans below.