hero-image-0
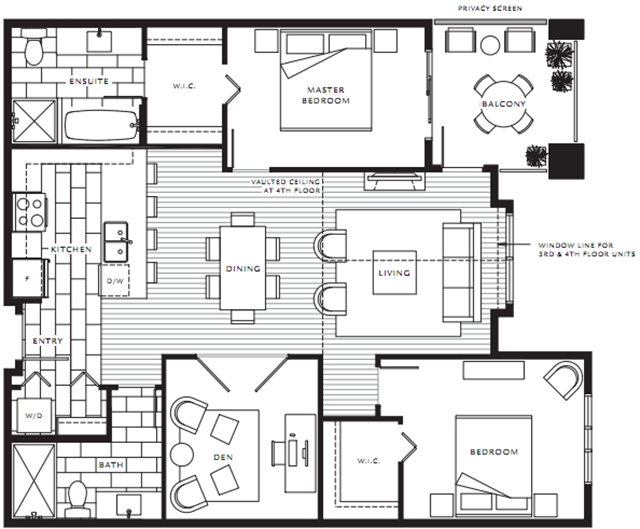
The Grove at Victoria Hill
Sold
Sold
2
1
From 1,090
unit-banner-imageunit-banner-imageunit-banner-image
Plan F details
Plan F is now sold.
Check out available nearby plans below.