hero-image-0
The Grove at Victoria Hill
Sold
Sold
2
From 1,090
unit-banner-imageunit-banner-imageunit-banner-image
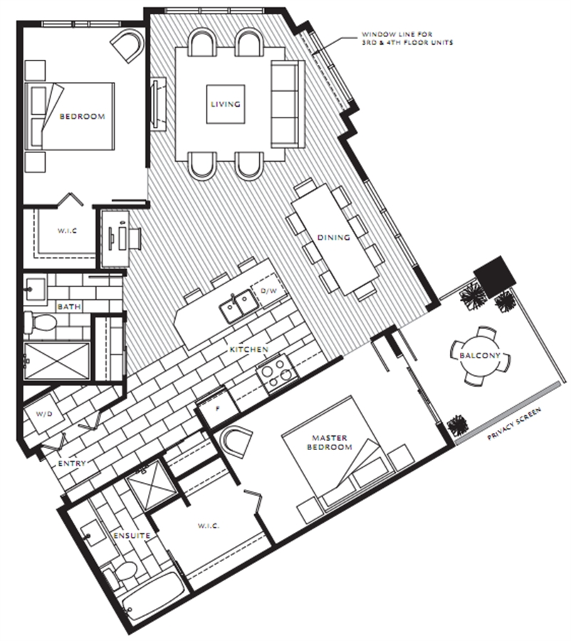
Plan D details
Plan D is now sold.
Check out available nearby plans below.