hero-image-0

78 430 DUNCAN STREET

Stanley Green
Sold
Sold
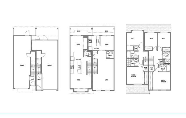
3
2
1
1,330
78 430 DUNCAN STREET details
78 430 DUNCAN STREET is now sold.
Check out available nearby townhomes below.