hero-image-0
Parkside at Victoria Hill
Sold
Sold
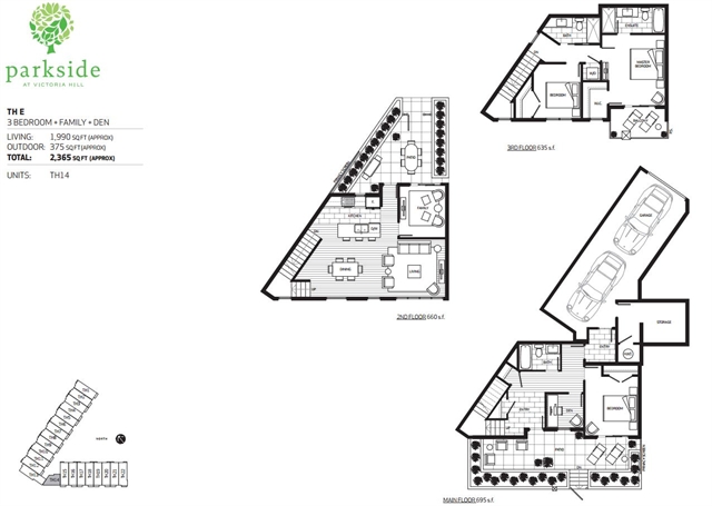
3
1
From 1,990
unit-banner-imageunit-banner-imageunit-banner-image
E Plan details
E Plan is now sold.
Check out available nearby plans below.