hero-image-0

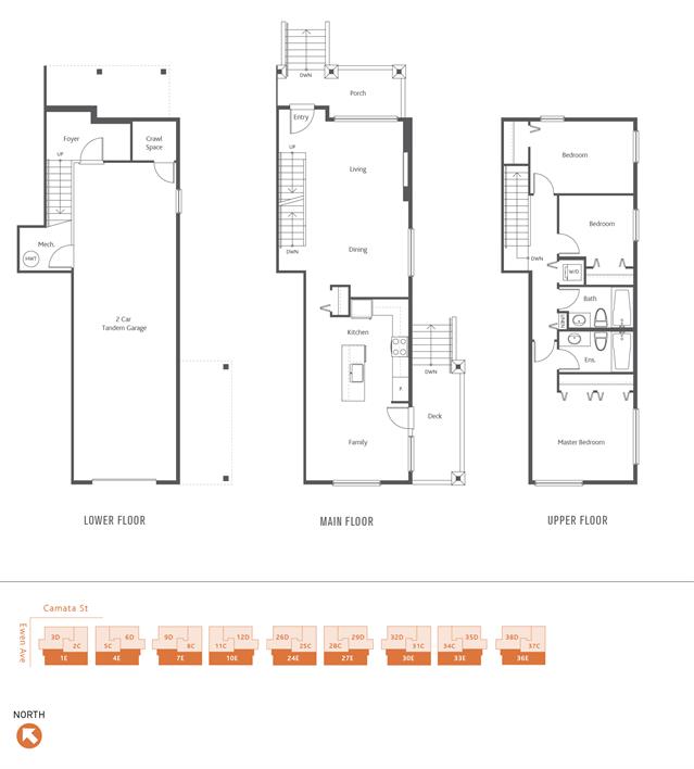
E Plan

By

Aragon

   |   

Canoe

Canoe
Sold
Sold
3
2
From 1,577
unit-banner-imageunit-banner-imageunit-banner-image
E Plan details
E Plan is now sold.
Check out available nearby plans below.