hero-image-0

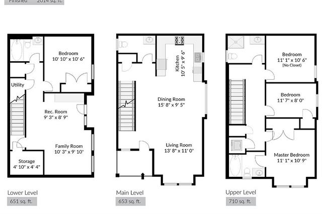
1022-2 Fourth Ave

Augustus Heights
Sold
Sold
4
3
1
2,014
1022-2 Fourth Ave details
unit-banner-image
unit-banner-image
unit-banner-image
1022-2 Fourth Ave is now sold.
Check out available communities below.