hero-image-0

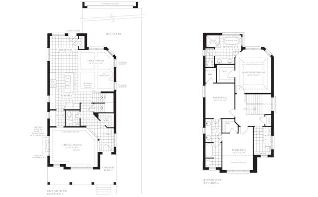
Violet Plan

Valleyview
Sold
Sold
3
2
1
From 2,200
unit-banner-imageunit-banner-imageunit-banner-image
Violet Plan details
Violet Plan is now sold.
Check out available nearby plans below.

Interested? Receive updates

Stay informed with Livabl updates on new community details and available inventory.