hero-image-0

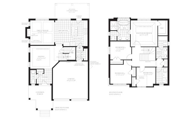
Poppy Plan

Valleyview
Sold
Sold
4
2
1
From 2,020
unit-banner-imageunit-banner-imageunit-banner-image
Poppy Plan details
Poppy Plan is now sold.
Check out available nearby plans below.

Interested? Receive updates

Stay informed with Livabl updates on new community details and available inventory.