hero-image-0
hero-image-1
hero-image-2

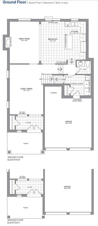
Meadowlands Plan

Mill Street Village
Sold
Sold
4
2
1
From 2,413
unit-banner-imageunit-banner-imageunit-banner-image
Meadowlands Plan details
Meadowlands Plan is now sold.
Check out available nearby plans below.