hero-image-0
hero-image-1
hero-image-2

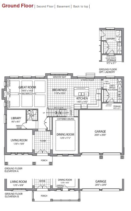
Madison Plan

Mill Street Village
Sold
Sold
4
3
1
From 3,549
unit-banner-imageunit-banner-imageunit-banner-image
Madison Plan details
Madison Plan is now sold.
Check out available nearby plans below.