hero-image-0
hero-image-1
hero-image-2

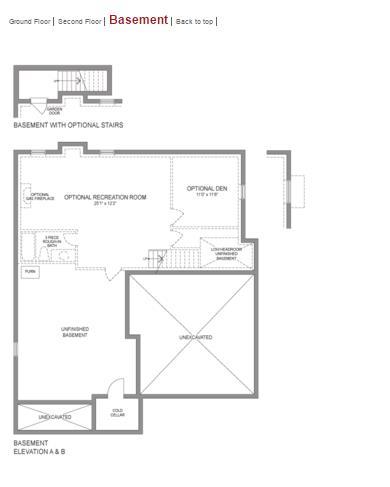
Hampshire Plan

Mill Street Village
Sold
Sold
4
3
1
From 2,902
unit-banner-imageunit-banner-imageunit-banner-image
Hampshire Plan details
Hampshire Plan is now sold.
Check out available nearby plans below.