hero-image-0
hero-image-1
hero-image-2
hero-image-3

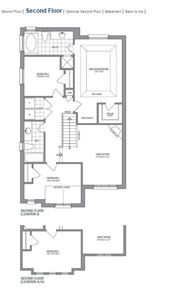
Cambridge Plan

By

Ballymore Homes

   |   

Mill Street Village

Mill Street Village
Sold
Sold
3
2
From 2,035
unit-banner-imageunit-banner-imageunit-banner-image
Cambridge Plan details
Cambridge Plan is now sold.
Check out available nearby plans below.