hero-image-0
hero-image-1
hero-image-2
hero-image-3

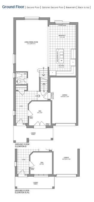
Bluegrass Plan

By

Ballymore Homes

   |   

Mill Street Village

Mill Street Village
Sold
Sold
3
2
1
From 1,837
unit-banner-imageunit-banner-imageunit-banner-image
Bluegrass Plan details
Bluegrass Plan is now sold.
Check out available nearby plans below.