hero-image-0
hero-image-1
hero-image-2
Mill Street Village
Sold
Sold
4
1
From 2,257
unit-banner-imageunit-banner-imageunit-banner-image
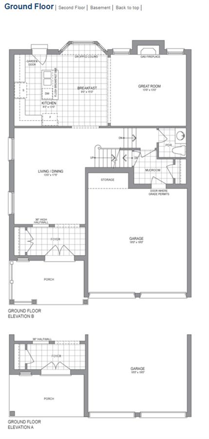
Windsong Plan details
Windsong Plan is now sold.
Check out available nearby plans below.