hero-image-0
hero-image-1
hero-image-2
hero-image-3

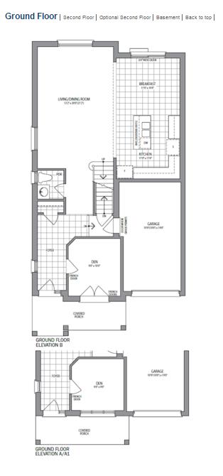
Willowdale Plan

Mill Street Village
Sold
Sold
3
2
1
1
From 2,055
unit-banner-imageunit-banner-imageunit-banner-image
Willowdale Plan details
Willowdale Plan is now sold.
Check out available nearby plans below.