hero-image-0
hero-image-1
hero-image-2
hero-image-3
hero-image-4

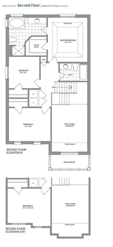
Heartland Plan

Mill Street Village
Sold
Sold
3
2
1
From 2,081
unit-banner-imageunit-banner-imageunit-banner-image
Heartland Plan details
Heartland Plan is now sold.
Check out available nearby plans below.