





















































Get additional information including price lists and floor plans.
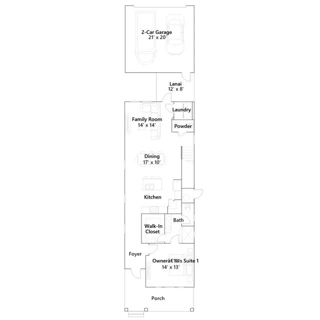
This new two-story home offers unparalleled luxury with two lavish owners suites, one on each floor featuring a full bathroom and oversized walk-in closet. At the back of the home, an open-concept layout encourages seamless everyday living with easy access to an outdoor lanai. Two additional bedrooms and a versatile loft can be found on the second level, along with the second owners suite.
Stay informed with Livabl updates on new community details and available inventory.