













































































Get additional information including price lists and floor plans.
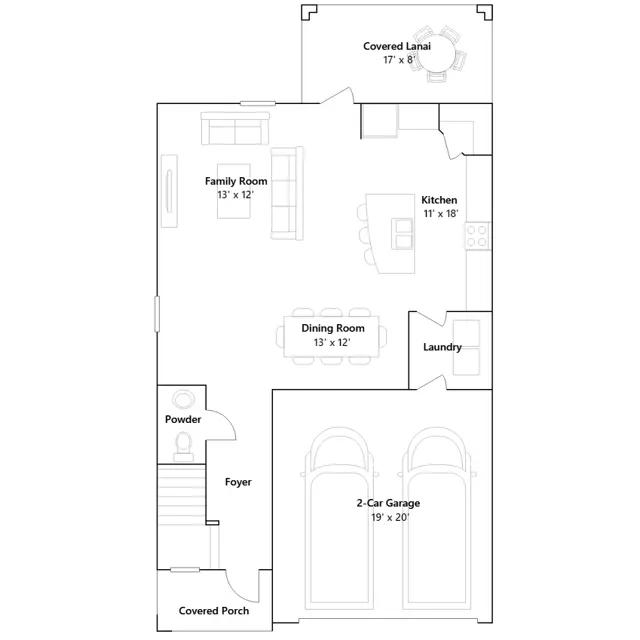
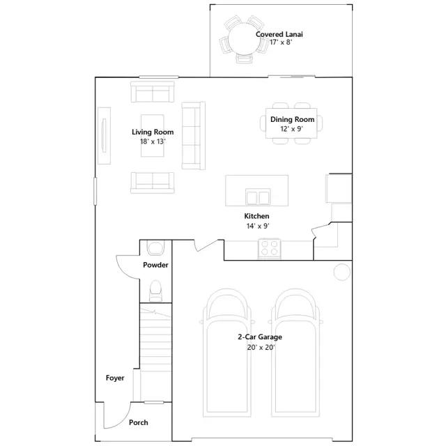
This spacious two-story home boasts five bedrooms with room to spare. The first floor contains a breezy living room, dining room and kitchen in an open design. The spacious owners suite is tucked away on the second floor, along with all the secondary bedrooms, just off the versatile loft space.
Stay informed with Livabl updates on new community details and available inventory.