hero-image-0
hero-image-1
hero-image-2

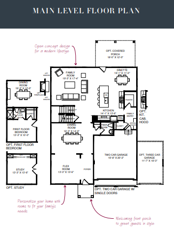
Tyler Plan

Lake Linganore Oakdale Singles
Sold
Sold
4
4
1
From 4,553
Tyler Plan details
Tyler Plan is now sold.
Check out available nearby plans below.