





















































Get additional information including price lists and floor plans.
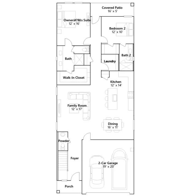
This new single-level home boasts a modern and low-maintenance design. An open-concept floorplan combines the kitchen, living and dining areas, with a convenient study providing a secluded space to focus on important tasks. Three bedrooms are nestled at the back of the home, including the luxe owners suite with a full-sized bathroom and walk-in closet.
Stay informed with Livabl updates on new community details and available inventory.