











































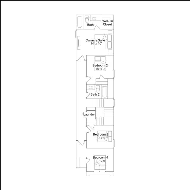
The first floor of this two-story home is host to an open floorplan that combines a fully-equipped kitchen with the living and dining areas to maximize the footprint of the home. There are four bedrooms located upstairs, including the luxe owners suite, which is positioned at the back of the home for enhanced privacy and comfort.