



































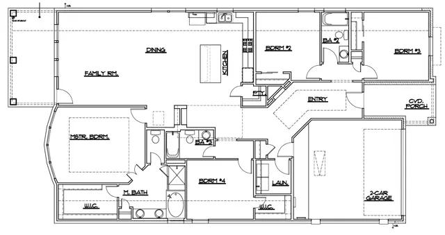
The Hamilton is a beautiful one story plan featuring four bedrooms, three bathrooms, a large family room open to the casual dining and a generous kitchen with walk-in pantry. Options to personalize this home include bay windows in the master bedroom and dining area, fireplace, study, a second floor with a bonus room and powder, or a fifth bedroom, loft and an additional full bathroom, covered patio and 3rd bay garage.
Stay informed with Livabl updates on new community details and available inventory.