













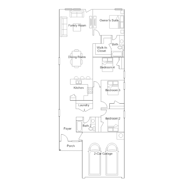
This single-story home has a thoughtful layout that is ideal for families. There is an owners suite with a full bathroom and walk-in closet in the back for added privacy. The open living area is connected to the foyer and features a versatile open layout with the kitchen, living room and family room all in one area.
Stay informed with Livabl updates on new community details and available inventory.