































































































Get additional information including price lists and floor plans.
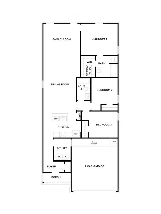
Check out the Barton, one of our one-story floorplans available at Spring Valley in New Braunfels, Texas. This 3 bedroom, 2 bathroom home includes a 2-car garage all within 1,280 square feet of comfortable living space. Our homes in Spring Valley feature front masonry exteriors, and the Barton is available in 2 exterior options. As you enter the home from the front porch, youll be in the foyer, which includes the utility room and access to the garage. Moving further into the home, youll find the kitchen, dining and family room. Built as an open concept living space, youre sure to make many memories here. The kitchen features an island with a stainless-steel sink, quartz countertops, 42 upper picture frame cabinets, a pantry closet, and stainless-steel appliances. The secondary bedrooms and bathroom are located off the kitchen. The bedrooms include carpet and...
Stay informed with Livabl updates on new community details and available inventory.