






























































Get additional information including price lists and floor plans.
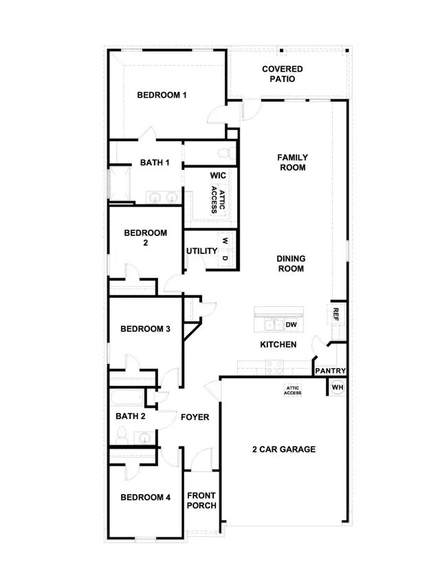
The Gaven is one of our one-story homes featured in our Mayfair community in New Braunfels, Texas. This efficient floorplan offers 1,780 square feet of living space across 4 bedrooms, 2 bathrooms and a 2 car garage. Our homes in Mayfair feature front masonry exteriors and the Gaven is available with 2 exterior options to choose from. Stepping inside the home from the covered entryway, you will find two secondary bedrooms and a full bathroom off the foyer. The secondary bathroom includes a shower/tub combination, and the bedrooms feature a closet with shelving. Moving further into the home, you will find the kitchen, which includes an island with an undermount sink, stainless steel appliances, including a gas range, quartz countertops and 42 upper cabinets. The dining room and family room flow easily from the kitchen and youre sure to make many memories in thi...
Stay informed with Livabl updates on new community details and available inventory.