





















































Images coming soon
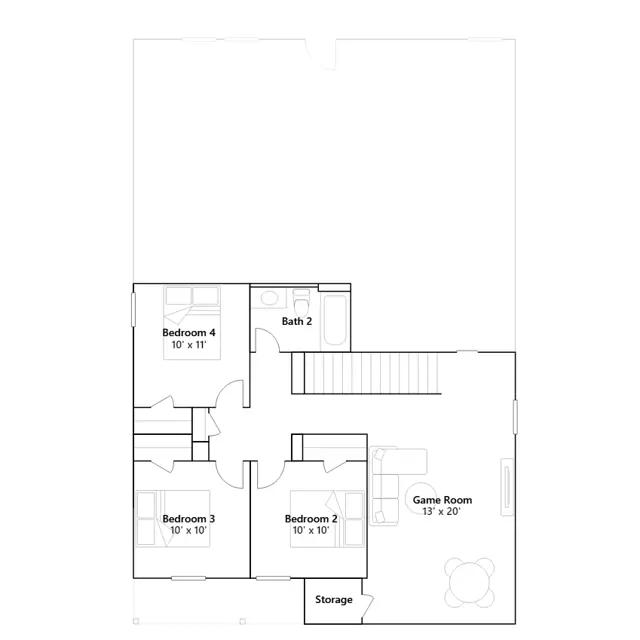
This new two-story home features a luxurious owners suite on the first level, offering a tranquil retreat with a full bathroom and walk-in closet. A nearby open-concept layout encourages seamless transitions and multitasking between the kitchen, living and dining areas. On the second floor, a versatile game room provides a convenient shared living area near three additional bedrooms.
Stay informed with Livabl updates on new community details and available inventory.