hero-image-0
hero-image-1
hero-image-2

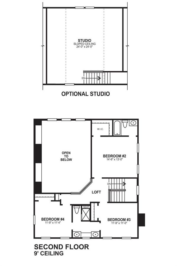
Avenbury Plan

By

M/I Homes

   |   

Lansdowne

Lansdowne
Sold
Sold
3
3
1
From 2,951
Avenbury Plan details
Avenbury Plan is now sold.