




Get additional information including price lists and floor plans.
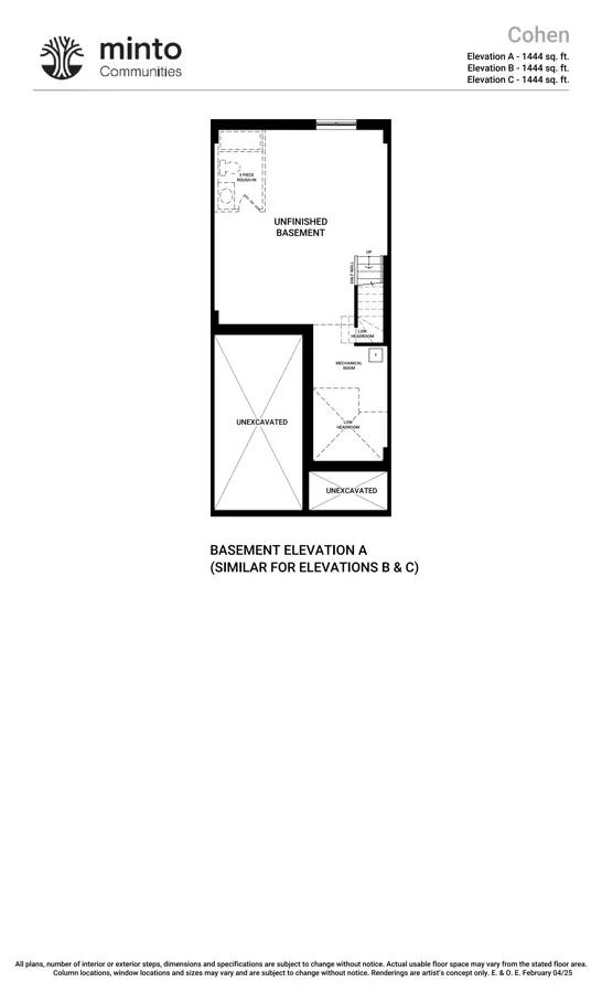
Some more details on the Cohen: $5,000 Design Centre Bonus 6 appliance package Minto Smarter Home Starter Package 9' Smooth Ceilings on the Main Floor Hardwood Flooring on the Main Floor (except in tiled areas) Quartz Countertop in the Kitchen Potlights in the Main Hallway Enjoy bright, open living in the Cohen Executive Townhome. The main floor is naturally-lit, designed with a large living room connected to the kitchen to bring the family together. The basement includes flex plan options for a finished rec room for more space to live, work and play, more so when it’s upgraded with an additional bedroom and 3-piece bathroom. The second floor features 3 bedrooms, 2 bathrooms and the laundry room, while the primary bedroom offers a 3-piece ensuite and a spacious walk-in closet. Source: Minto
Stay informed with Livabl updates on new community details and available inventory.