New Homes for Sale
Articles
Professionals
Log in
Sign up
Photos 3
Videos 0
Map
Interactive floor plan 0
Virtual 0
Reserve Pointe Palm B Plan
By
D.R. Horton
|
Reserve Pointe
Community
Available homes
Get updates
Save
Request info
Request info
Community
Available homes
Request info
Get updates
Save
Request info
Reserve Pointe
Get updates
Request info
Sold
Sold
3
2
1
From 1,550
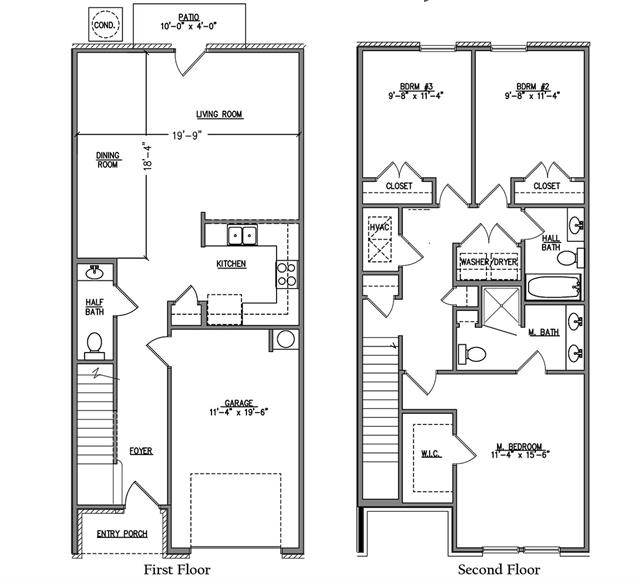
Reserve Pointe Palm B Plan details
Address:
Navarre, FL 32566
Plan type:
Detached Two+ Story
Beds:
3
Full baths:
2
Half baths:
1
SqFt:
From 1,550
Ownership:
Fee simple
Interior size:
From 1,550 SqFt
Lot pricing included:
Yes
Reserve Pointe Palm B Plan is now sold.