











































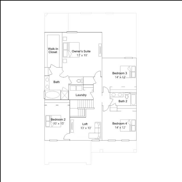
This two-story Next Gen home offers a split design with a separate living room, kitchenette and bedroom with a private entrance on the first floorperfect for adult residents. Nearby, the main home features an open layout with access to a covered patio for outdoor experiences. The second level contains all four bedrooms, including the owners suite, and a loft.